
Kích thước tối thiểu cho phòng tắm
Tính năng nên được ưu tiên hơn hình thức trong phòng tắm. Do đó, khi lập kế hoạch cho bất kỳ phòng tắm nào, có những kích thước tối thiểu phải được xem xét để đảm bảo không gian có thể sử dụng được tối đa.
Hầu hết kích thước tối thiểu cho phòng vệ sinh có bồn cầu và chậu rửa là 140 x 95 cm (bố cục hình chữ nhật) hoặc 120 x 120 cm (bố cục hình vuông), với cửa mở quay. Không gian này có thể được giảm bớt nếu chúng ta chọn các thiết bị nhỏ gọn hoặc âm tường, hoặc nếu chúng ta chọn cửa lùa.
Kích thước tối thiểu cho phòng tắm nhỏ có vòi sen hoặc bồn tắm, bồn cầu và chậu rửa, với điều kiện sử dụng cửa lùa, là 150 x 150 cm cho phòng tắm có bồn tắm và 135 x 150 cm cho phòng tắm có vòi sen hình chữ nhật.

Làm thế nào để bố trí phòng tắm?
Nhưng trước khi bắt đầu vẽ bản thiết kế cho phòng tắm của mình, chúng ta nên tự hỏi những câu hỏi sau và làm theo các bước này:
Bước 1: Lập kế hoạch nhu cầu cụ thể
Xác định nhu cầu cụ thể của không gian và những người sẽ sử dụng nó. Phòng tắm dành cho gia đình có trẻ nhỏ sẽ khác với phòng tắm trong khách sạn hay biệt thự cao cấp.
Bước 2: Quyết định thiết bị và đồ đạc cần thiết
Hầu hết các thiết bị này đều cố định và cần được lắp đặt trước khi có thể đưa vào vị trí. Một số câu hỏi cần trả lời:
- Chúng ta sẽ có các thiết bị âm tường không, chẳng hạn như két nước bồn cầu âm tường?
- Kích thước phòng tắm có nghĩa là chúng ta phải chọn các mô hình nhỏ gọn không?
- Chậu rửa sẽ như thế nào - đơn hay đôi, đặt bàn hay âm bàn?
- Chúng ta sẽ lắp đặt vòi sen hay bồn tắm?
- Có cần bao gồm bồn vệ sinh hay không?
Bước 3: Tuân thủ quy định thoát nước
Các quy định về thoát nước trong phòng tắm nhằm tối ưu hóa mạng lưới thoát nước và sử dụng nguồn năng lượng:
- Bố cục mạng phải đơn giản và tối ưu để nước chảy theo trọng lực.
- Kết nối thiết bị với ống thoát nước chính. Nếu không thể do thiết kế, cho phép kết nối với ống thoát của bồn cầu.
- Khoảng cách giữa bẫy xi phông và ống thoát xuống không được vượt quá 2 m, và bất kỳ nhánh nào đến bẫy xi phông phải có chiều dài tối đa 2.5 m, với độ dốc từ 2-4%.
- Các thiết bị có xi phông riêng lẻ, chẳng hạn như chậu rửa mặt hoặc bồn vệ sinh, không được cách ống thoát xuống quá 4 m, với độ dốc từ 2.5 đến 5%. Đối với bồn tắm và vòi sen, độ dốc không được vượt quá 10%.
- Bồn cầu phải thoát nước trực tiếp vào ống thoát xuống hoặc thông qua ống nối không dài quá 1 m.
- Chậu rửa, bồn vệ sinh và bồn tắm phải có lỗ thoát nước dự phòng.
- Không đặt các cống thoát đối diện nhau và kết nối với một ống chung.
Kích thước tối thiểu cho bồn cầu và bồn vệ sinh
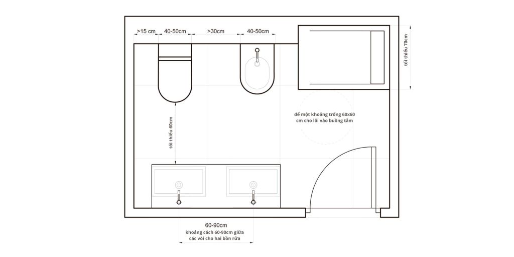
Bồn cầu và bồn vệ sinh phải có khoảng trống tối thiểu 70 cm chiều rộng và 120 cm chiều dài. Nếu chúng nằm cạnh tường, khoảng trống tối thiểu phải là 20 cm, và nếu có thiết bị ở bên cạnh, không được đặt gần hơn 15 cm để sử dụng tốt hơn.
Một cách để tối ưu hóa không gian hơn nữa là sử dụng bồn cầu có két nước được tích hợp vào tường, bên trong vách ngăn, hoặc các mẫu bồn cầu nhỏ gọn và treo tường, có kích thước nhỏ hơn các loại tiêu chuẩn. Bồn cầu treo tường nên được lắp đặt 45 cm từ mặt sàn.
Các thiết kế phòng tắm mới nhất ủng hộ việc kết hợp bồn cầu và bồn vệ sinh thành một đơn vị duy nhất, chẳng hạn như bồn cầu thông minh hoặc bồn cầu vòi xịt. Những lựa chọn này lý tưởng cho phòng tắm nhỏ hoặc các dự án cần giảm thiểu số lượng thiết bị cần lắp đặt.
Kích thước và chiều cao tối thiểu cho chậu rửa
Có rất nhiều định dạng và kích thước chậu rửa, mặc dù chậu rửa đơn thường có kích thước khoảng 60 cm chiều rộng và 45 cm chiều sâu. Không gian tối thiểu cần thiết cho bàn đá là 70 cm chiều rộng.
Chậu rửa đôi có chiều rộng tiêu chuẩn 90 cm và yêu cầu bàn đá có chiều rộng tối thiểu 120 cm, với khoảng cách tối thiểu 60 cm giữa hai vòi. Chiều cao lắp đặt để có chức năng tối đa là 85 cm từ mặt sàn, mặc dù có thể điều chỉnh theo chiều cao của người sử dụng.

Trong trường hợp chậu rửa đặt bàn, số đo này nên được lấy để định vị phần cao nhất của thiết bị.
Kích thước tối thiểu cho tủ phòng tắm và chiều cao lắp gương
Không tính đến các đặc điểm công thái học tùy thuộc vào người sử dụng, các khuyến nghị chung chỉ ra rằng tủ phòng tắm nên được đặt cách 85-90 cm từ mặt sàn, và gương 35 cm phía trên bàn đá chậu rửa hoặc 15 cm phía trên vòi.

Kích thước lắp đặt tối thiểu cho bồn tắm và vòi sen
Trong phạm vi các mẫu có sẵn, kích thước tiêu chuẩn của bồn tắm là 200 x 70 cm, với chiều cao 42 cm. Vòi sen mang lại tính linh hoạt cao hơn, và có các tùy chọn khay tắm cắt xẻ cho phép khả năng thích ứng cao hơn với đặc thù của không gian.
Trong mọi trường hợp, không gian vòi sen tối thiểu không được nhỏ hơn 70 x 70 cm, và cửa hoặc lối vào của nó phải cho phép lối đi thông thoáng 60 cm. Nếu lắp đặt vách ngăn cố định, chiều rộng lối đi tối thiểu phải là 60 cm, mặc dù trong trường hợp cực đoan 50 cm sẽ được chấp nhận.
Chiều cao lắp đặt vòi bồn tắm và vòi sen
Trong trường hợp vòi bồn tắm, chúng được lắp đặt ở độ cao khoảng 70 cm từ mặt sàn (tính đến tổng chiều cao của bồn tắm) và trong trường hợp vòi sen, ở 140 cm từ khay tắm.

Cửa phòng tắm nên như thế nào?
Cửa lùa là một lựa chọn tuyệt vời để tiết kiệm không gian, nhưng nếu sử dụng cửa quay, phải có lối đi thông thoáng 62 cm, đây là kích thước phổ biến nhất cho cửa phòng tắm.

Nên đặt ổ cắm ở đâu trong phòng tắm?
Theo quy định về lắp đặt thiết bị điện trong phòng tắm, điều quan trọng là phải hiểu cách phân loại đèn trong phòng tắm. Chữ cái IP là viết tắt của 'Ingress Protection' (Bảo vệ xâm nhập) và luôn được theo sau bởi hai ký tự. Hai con số này đề cập đến mức độ bảo vệ và điều quan trọng là bạn phải chọn phụ kiện có xếp hạng bảo vệ chính xác, tùy thuộc vào vị trí chúng sẽ được đặt trong phòng tắm.

Phân vùng bảo vệ trong phòng tắm:
Vùng 0: Bên trong bồn tắm hoặc vòi sen. Bất kỳ sản phẩm nào được sử dụng trong vùng này phải là điện áp thấp (tối đa 12V) và được xếp hạng ít nhất IP67.
Vùng 1: Khu vực phía trên bồn tắm hoặc vòi sen ở độ cao 2.25m từ mặt sàn. Trong vùng này, yêu cầu xếp hạng bảo vệ tối thiểu IP44.
Vùng 2: Khu vực 0.6m bên ngoài từ mặt sàn lên đến độ cao 2.25m, trên đỉnh vùng 1 lên đến 0.75m và khu vực tạo thành bằng cách khắc một nửa hình tròn 0.60m phía trên chậu rửa, bắt đầu từ điểm thoát nước. Trong vùng này, xếp hạng bảo vệ tối thiểu phải là IP44.
Vùng 3: Mọi thứ bên ngoài bất kỳ vùng 0, 1 và 2 trước đó (tuân theo các giới hạn cụ thể) và nơi không sử dụng động cơ nước. Vùng này yêu cầu xếp hạng bảo vệ IP-X1.
Ngoài những điều trên, nếu có khả năng lắp đặt bất kỳ sản phẩm nào gần điểm thoát nước, bất kể vị trí của nó trong vùng 1, 2 và 3, nó phải có xếp hạng bảo vệ tối thiểu IP65.
5 ví dụ về phương án bố trí phòng tắm
Dù bạn có phòng tắm lớn hay nhỏ, bạn sẽ cần sắp xếp các thiết bị phòng tắm đúng cách để không gian có thể sử dụng được và tối ưu hóa từng centimet. Để giúp bạn lập kế hoạch cho phòng tắm của mình, các chuyên gia của chúng tôi đã đưa ra 5 phương án bố trí để giúp bạn thiết kế phòng tắm tận dụng tối đa không gian có sẵn.
Phương án 1: Phòng tắm nhỏ 1.5 m²
Đối với không gian nhỏ, chúng tôi đề xuất bản thiết kế phòng tắm nhỏ này: một phòng vệ sinh với bồn cầu nhỏ gọn và chậu rửa đơn. Bản vẽ có kích thước 1.5 x 1.5 m.

Thiết bị bao gồm:
- Bồn cầu nhỏ gọn hoặc treo tường
- Chậu rửa đơn 60 cm
- Gương 60-70 cm
- Tủ treo tường nhỏ
Phương án 2: Phòng tắm 3.70 m²
Một phòng tắm nhỏ với vòi sen, chậu rửa và bồn cầu nhỏ gọn. Bản vẽ có kích thước 1.75 m x 2.10 m.
Thiết bị bao gồm:
- Vòi sen 80 x 80 cm hoặc 90 x 90 cm
- Bồn cầu nhỏ gọn
- Chậu rửa đơn 60 cm
- Gương và tủ phòng tắm
Phương án 3: Phòng tắm 4 m²
Chúng tôi đề xuất phòng tắm 4m² với bồn tắm, chậu rửa đơn, bồn cầu và bồn vệ sinh. Bản vẽ có kích thước 2x2m.

Thiết bị bao gồm:
- Bồn tắm 170 x 70 cm
- Chậu rửa đơn 60 cm
- Bồn cầu
- Bồn vệ sinh
- Tủ phòng tắm và gương
Phương án 4: Phòng tắm 5 m²
Phòng tắm này bao gồm bồn tắm, chậu rửa đơn và bồn cầu thông minh (bồn cầu có chức năng vòi xịt tích hợp). Kích thước trên bản vẽ là 1.80 x 2.75m.

Thiết bị bao gồm:
- Bồn tắm 180 x 80 cm
- Chậu rửa đơn 60-70 cm
- Bồn cầu thông minh (thay thế cho bồn vệ sinh riêng)
- Tủ phòng tắm lớn và gương
Phương án 5: Phòng tắm 6.38 m²
Một phòng tắm với bồn tắm, vòi sen, bồn cầu, bồn vệ sinh và chậu rửa đôi. Bản vẽ có kích thước 2.20 x 2.90 m.

Thiết bị bao gồm:
- Bồn tắm 170 x 70 cm
- Vòi sen riêng biệt 90 x 90 cm
- Chậu rửa đôi với bàn đá 120 cm
- Bồn cầu
- Bồn vệ sinh hoặc bồn cầu thông minh
- Tủ phòng tắm lớn và gương rộng
Kết luận
Bố trí phòng tắm một cách hiệu quả không chỉ cải thiện chức năng của nó mà còn tối ưu hóa từng centimet có sẵn, bất kể kích thước của nó. Dù bạn có phòng tắm nhỏ hay lớn hơn, việc tính đến các kích thước tối thiểu và bố cục chính xác của từng thiết bị là điều cần thiết để tạo ra một không gian thoải mái, thiết thực và hài hòa.
Bằng cách tuân theo các nguyên tắc này, bạn có thể đạt được một thiết kế kết hợp sự thoải mái, thẩm mỹ và sử dụng không gian, cải thiện trải nghiệm của người dùng và đảm bảo một môi trường dễ chịu cho mọi người.
Nguồn ảnh minh họa: Noken

